G lakás
EladvaTetőtér • Görgey utca 32, Vác
Alapterület
65,02 m²
Szobák
2+1
Terasz
27,25 m²

Nagyítás
1 / 3
Alaprajz

Nagyítás
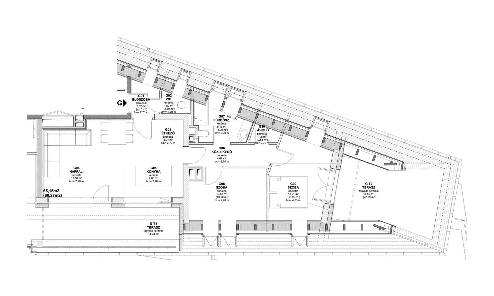
Helyiséglista
Helyiség
Terület
Előszoba
Kerámia
2,62 m²
WC
Kerámia
1,82 m²
Étkező
Parketta
5,04 m²
Nappali
Parketta
17,1 m²
Konyha
Kerámia
4,8 m²
Közlekedő
Parketta
4,69 m²
Fürdőszoba
Kerámia
5,13 m²
Szoba
Parketta
10,53 m²
Szoba
Parketta
12,21 m²
Tároló
Parketta
1,08 m²
🌿 Terasz 1
Kerámia
11,73 m²
🌿 Terasz 2
Kerámia
15,52 m²
Nettó alapterület összesen
65,02 m²
Terasz összesen:
27,25 m²