E lakás
EladvaTetőtér • Görgey utca 32, Vác
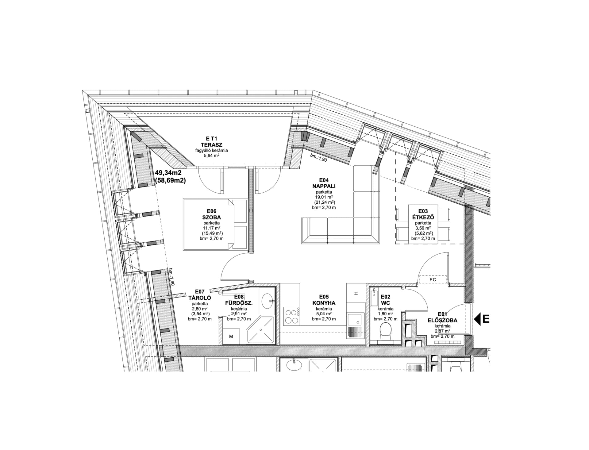
Alapterület
49,34 m²
Szobák
1+1
Terasz
5,64 m²

Nagyítás
1 / 3
Alaprajz

Nagyítás
Helyiséglista
Helyiség
Terület
Előszoba
Kerámia
2,87 m²
WC
Kerámia
1,8 m²
Étkező
Parketta
3,56 m²
Nappali
Parketta
19,01 m²
Konyha
Kerámia
5,04 m²
Szoba
Parketta
11,35 m²
Tároló
Parketta
2,8 m²
Fürdőszoba
Kerámia
2,91 m²
🌿 Terasz
Kerámia
5,64 m²
Nettó alapterület összesen
49,34 m²
Terasz összesen:
5,64 m²