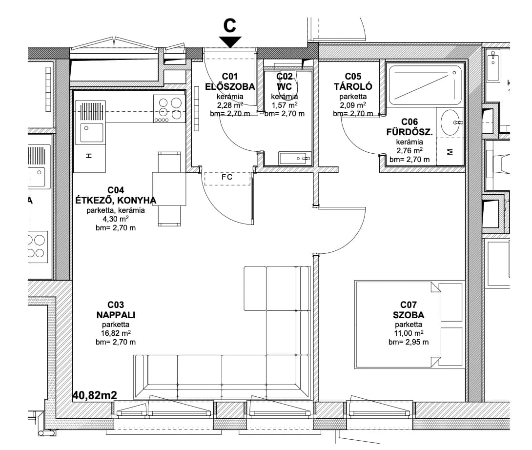
C lakás
EladvaEmelet • Görgey utca 32, Vác
Alapterület
40,82 m²
Szobák
1+1

Nagyítás
1 / 4
Alaprajz

Nagyítás
Helyiséglista
Helyiség
Terület
Előszoba
Kerámia
2,28 m²
WC
Kerámia
1,57 m²
Nappali
Parketta
16,82 m²
Étkező, konyha
Kerámia
4,3 m²
Tároló
Parketta
2,09 m²
Fürdőszoba
Kerámia
2,76 m²
Szoba
Parketta
11 m²
Nettó alapterület összesen
40,82 m²